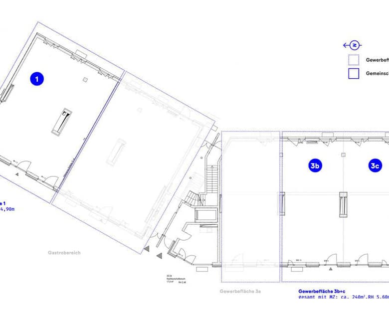
Gewerbefläche Gotenstrasse, Schöneberg

  • monatl. 25,00€/m²
Empfohlen
  • 100
  • 2024
  • Baujahr
Empfohlen
Gewerbefläche Gotenstrasse, Schöneberg
  • monatl. 25,00€/m²

Beschreibung

Adresse

  • Adresse Gotenstrasse 46
  • Postleitzahl 10829

Details

Aktualisiert am April 7, 2025 bei 4:07 p.m.
  • Preis: monatl. 25,00€/m²
  • Grundstücksgröße: 100 m²
  • Grundstücksfläche: 240 m²
  • Baujahr: 2024

Hypothekenrechner

Monatlich
  • Anzahlung
  • Darlehensbetrag
  • Monatliche Hypothekenzahlung
  • Vermögenssteuer
  • Hausratversicherung
  • PMI
  • Monatliche HOA-Gebühren
%
%
%
%

Planen Sie eine Tour

Reiseart

Was gibt es in der Nähe?

Bitte geben Sie Ihren API-Schlüssel ein Klicken Sie hier

Kontaktinformationen

Einträge anzeigen
ib-real
  • ib-real

Erkundigen Sie sich nach dieser Immobilie

0 Rezension

Sortieren nach:
Hinterlassen Sie eine Bewertung

Hinterlassen Sie eine Bewertung

Ähnliche Einträge

Inserate vergleichen

Vergleichen
ib-real
  • ib-real